PROJECTS
MOLINS
AIGUABLAVA
ARAGO
ASTURIAS
AVANTON STARTERS
AVILA
BOU DE SANT PERE
CALELLA
CARME A
CARME B
CARME C
SANT MARTI
CORSEGA
EDISON
ESPALTER
FONTANER
HOLANDA
INDUSTRIA
LLAVANERAS
LLUNA
MOLINS DE REI
OCCDIDENT
CASA PMP
PI
NOU DE LA RAMBLA
PORTAFERRISSA
ALABA
REIG I BONET
REINA AMALIA
ROBADORS
ROCAFORT
ROGAR DE FLOR
SANT CUGAT
BALMES
TALLERS 45
VOLTA A
YOGA GROW
VOLTA B
CASTELLO D'EMPURIES
ALMERIA
ABOUT
CONTACT
CARME B
CARME B
Double en suite luxury apartment, Raval
Slide title
Write your caption here
Button
Slide title
Write your caption here
Button
Slide title
Write your caption here
Button
Slide title
Write your caption here
Button
Slide title
Write your caption here
Button
Slide title
Write your caption here
Button
CARME B
Year - 2017
Size - 206m2
Constructor - IRC Groupo
Photos - Gael del Río
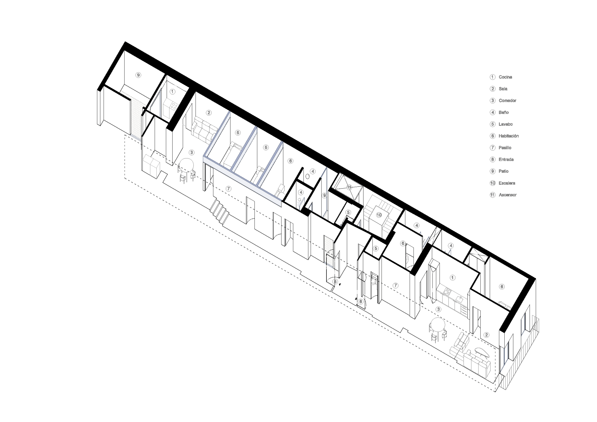
DRAWINGS
Button
Button
VIEW ALL PROJECTS
C. Pau Alsina 44,
local 08025 Barcelona
+34.930.152.175
estudio@m-i-r-a.com
Imprint
|
Data Protection
© m-i-r-a 2018 All rights reserved
Share by: